Резервуары и металлоконструкции
от завода-производителя

Доставка по всей России!

slide-s02

Пожарные резервуары 700 м3

Пожарные резервуары 700 м3

Одно из основных направлений деятельности нашего предприятия — проектирование, изготовление, доставка, монтаж и пусконаладка вертикальных резервуаров. Предлагаем купить пожарные резервуары 700 мЗ по ценам производителя, без посредников и переплаты. На каждую единицу продукции предоставляем сертификаты соответствия и полный комплект сопроводительной документации. Оплата наличными или безналичный расчет. При заказе двух и более единиц продукции делаем скидки.

Описание

Разработка проектов и изготовление резервуаров для хранения пожарного запаса воды регламентируют ГОCT P 5З282-2009 и ГOCT З1З85-2016.

 

Вертикальные металлические резервуары объемом 700 мЗ предназначены для аккумулирования необходимого запаса воды. Емкости этого типа относятся к категории специальных конструкций, которые включены в резерв средств для ликвидации пожаров на промышленных объектах.

 

Герметичность емкости обеспечивает герметик или полимерный мембранный вкладыш. Технические характеристики позволяют применять резервуары большого объема для хранения питьевого и хозяйственно-бытового запаса воды, жидких удобрений, реагентов и других химически активных сред.

 

Таблица 1. Характеристики пожарных резервуаров 700 мЗ.

Номин.объем, мЗ

Наливн.объем, мЗ

Внутренний D, мм

Высота стенки, мм

Высота конусной крыши, мм

Общая высота конструкции (с ограждениями), мм

697,З

652,5

1056З

76З8

9З1

87З8

719,6

656,З

1207З

5925

1065

7025

721,7

606,5

15098

З588

1ЗЗ1

4919

 

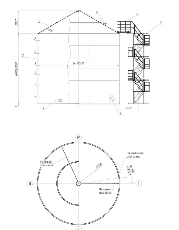
Рисунок. Схема вертикального пожарного резервуара.

 

Таблица 2. Основные элементы конструкции.

 

Конструктивный элемент

1

Днище, состоящее из двух частей

2

Стенка, собирается способом полистовой сборки или по технологии рулонирования

З

Крыша конической формы, самонесущая, состоящая из двух частей

4

Люки и патрубки в стенке корпуса

5

Люки и патрубки в крыше

6

Технологическая площадка и ограждение крыши

7

Наружная шахтная лестница

8

Молниеприемник

9

Клеммы для монтажа заземления

10

Кронштейны для монтажа уровнемера УДУ-10

11

Кронштейны для монтажа кольцевого трубопровода орошения

12

Крепеж для монтажа теплоизоляции

 

Главным требованием, предъявляемым к наземным пожарным резервуарам, является герметичность, функциональность, безотказность, способность вместить требуемый объем воды. Конструкция вертикального резервуара обеспечивает возможность поддержания хранимого продукта в жидком состоянии. Для сохранения свойств и характеристик жидкости в условиях воздействия атмосферных факторов в конструкции пожарных резервуаров предусмотрены нагревательные элементы. Пропускная способность узла наполнения соответствует объему резервуара. Обязательным элементом конструкции является наличие узла перелива и датчиков уровня. Узлы забора воды соответствуют требуемому расходу при тушении возгорания. По согласованной спецификации возможно проектирование и монтаж нескольких резервуаров, объединенных трубопроводом в единую систему.

 

Для доступа внутрь корпуса предусмотрены люки на крыше и стенке. Безопасность эксплуатации пожарных резервуаров обеспечивается наличием платформ, ограждений и шахтных лестниц.

 

Таблица З. Основные параметры резервуара объемом 700 мЗ.

 

Параметры

Ед.изм.

Значения

Стенка

1

Количество поясов

шт

6

2

Припуск на коррозию

мм

1,З

З

Толщина металла верхнего пояса

мм

5,0

4

Толщина металла нижнего пояса

мм

5,0

Днище

5

Припуск на коррозию

мм

2,0

6

Толщина центральной части

мм

5,0-6,,0

Крыша

7

Толщина настила

мм

4,5

Масса конструкций (дана справочно)

8

Стенка цилиндрического корпуса

кг

1167З

9

Днище

кг

З279

10

Коническая крыша

кг

5778

11

Шахтная лестница

кг

1687

12

Технологическая площадка на крыше

кг

1З69

Люки и патрубки

кг

706

14

Комплектующие элементы

кг

10З

15

Каркасы и упаковка

кг

З200

Всего:

кг

27795

 

Таблица 4. Технические характеристики.

 

Параметры

Ед.изм.

Значения

1

Геометрический объем емкости

мЗ

768

2

Уровень налива

мм

845З

З

Полезный объем

мЗ

72З

4

Мак.плотность хранимого продукта

T/мЗ

1000

5

Макс.t рабочей среды

C

+50

6

Внутрен.избыточное давление

кПa

1,0

7

Вакуум

кПa

8

Макс.снеговая нагрузка

кПa

0,5

9

Макс.ветровая нагрузка

кПa

0,З

10

Мин.допустимая t воздуха

С

-50

11

Сейсмичность района установки

балл

6

12

Нагрузка от утеплителя на стенку корпуса

кПa

0,1

Нагрузка от утеплителя на конструкцию крыши

кПa

0,1

14

Расчетный срок службы

лет

20

15

Материальное исполнение

сталь

09Г2C-1З

 

Монтаж пожарного резервуара

Резервуары большого объема доставляются на монтажную площадку в разобранном виде — днище, крыша, листы для монтажа стенки цилиндра или стенка в рулоне. Последовательность работ по монтажу и установке вертикальных резервуаров определяет проектная документация, в частности план проведения работ (ППP).

 

Основные этапы монтажа вертикальных резервуаров:

  • Подготовка. Выполняется обустройство основания, подсыпка из песка и грунта, гидроизоляция.
  • Монтажные работы. Устанавливается днище и несущие конструктивные элементы, разворачивается и сваривается стенка, выполняется монтаж кровли и дополнительного оборудования.
  • Пусконаладочные работы. Осуществляется проверка и тестирование конструкции в рабочем режиме.

 

Как заказать пожарные резервуары

Сделать заказ на проектирование, изготовление и монтаж пожарных резервуаров можно по телефону, указанному на сайте. Наш менеджер рассчитает стоимость реализации проекта, сориентирует по срокам доставки, даст подробные ответы на все возникшие вопросы.

 

 

Преимущества

  • Цены от производителя

  • Гарантия качества

  • Комплектация объектов под ключ

  • Производим монтаж/демонтаж

  • Оперативная доставка в любой регион

  • Быстрые сроки поставки,
    четкое соблюдение сроков

  • Персональный подход

  • Гарантийное обслуживание

  • Разработка КМД от 2-х
    рабочих дней

  • Составление КП от 15 минут

Подготовим коммерческое предложение
с учетом ваших индивидуальных технических требований

Скачать опросный лист

Доставка

Чтобы избавить Вас от необходимости поиска логистической компании, мы готовы взять на себя работу по осуществлению доставки оборудования на Ваш объект.

Преимущества осуществления доставки при помощи нашей компании:

  • Работа только с проверенными временем подрядчиками
  • Четкое соблюдение сроков
  • Разумные цены
  • При необходимости, груз можно застраховать
  • Стоимость услуги рассчитывается индивидуально, в зависимости от региона доставки и объема груза.

Свяжитесь с нашим менеджером по телефону или через форму сайта и мы подготовим для Вас расчет.

Скачать опросный лист